Refugio de tranquilidad frente al mar
Descubre la armonía perfecta entre la naturaleza y el diseño contemporáneo en nuestra exclusiva urbanización de viviendas unifamiliares en Playa Venao. Este proyecto, desarrollado en 2024, consta de cinco residencias únicas, con tamaños que varían entre los 70 m² y los 160 m², cada una diseñada para integrarse de manera impecable con el entorno costero.
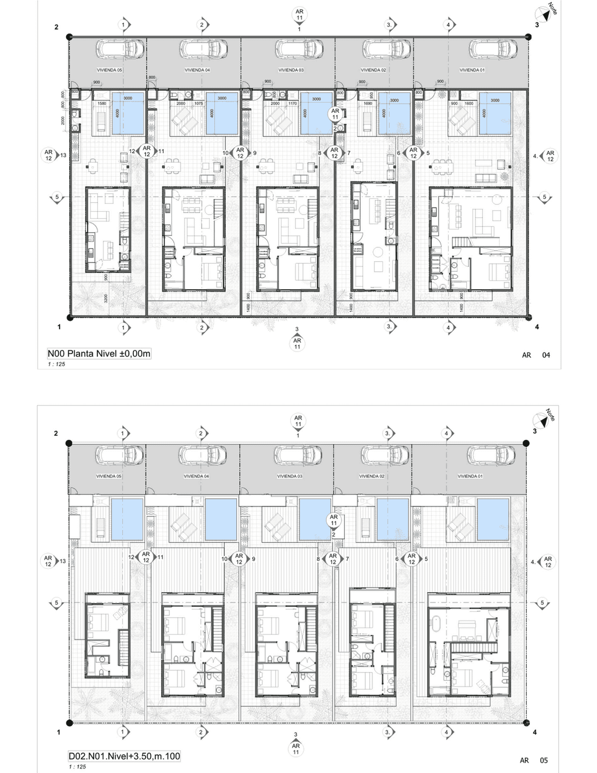
El proyecto
Inspirados por la serenidad y belleza de Playa Venao, nuestras viviendas presentan un diseño exterior que combina líneas modernas con detalles arquitectónicos que evocan un estilo sofisticado y relajado. Los materiales de construcción naturales, como la madera y la piedra, se utilizan de manera prominente, creando una estética atemporal que se funde perfectamente con el ecosistema de la playa.
En el interior, cada residencia ofrece un refugio de tranquilidad y confort. Los techos con vigas expuestas y los suelos de madera maciza aportan un encanto rústico, mientras que las amplias ventanas permiten que la luz natural inunde los espacios, creando una atmósfera luminosa y acogedora. La distribución inteligente de los espacios conecta sin esfuerzo las áreas de estar, comedor y cocina, fomentando un ambiente ideal para el entretenimiento y la vida familiar.
El corazón de cada vivienda es su jardín privado, donde una piscina impresionante actúa como punto focal. Este espacio no solo ofrece un lugar refrescante para disfrutar del clima tropical, sino que también une los espacios interiores y exteriores en una armonía perfecta, permitiendo una experiencia de vida al aire libre sin igual.
Los baños, diseñados como santuarios de serenidad, están inundados de luz natural gracias a la incorporación de lucernarios en la cubierta. Cada rincón está bañado por la luz del sol, creando una sensación de frescura y luminosidad en todo momento.
En esta urbanización en Playa Venao, la calidad de los materiales, la comunicación de los espacios y la atención al detalle se combinan para crear hogares que son tanto refugios de tranquilidad como lugares para disfrutar de la belleza de la vida junto al mar.
Detalles Técnicos
#VIRTUAL DESIGN
#BIM
#AUTOCAD
#MAGNELIS
#CONCRETO
#PANEL SANDWICH
#FIBROCEMENTO
#MADERA TRATADA
#CONCRETO PULIDO
#PORCELANATO
#LAVABOS RÚSTICOS
#STEEL FRAMING
#EIFS
#PANELES SOLARES
#PLANTAS TRAT ECO




