Seaside haven of tranquility
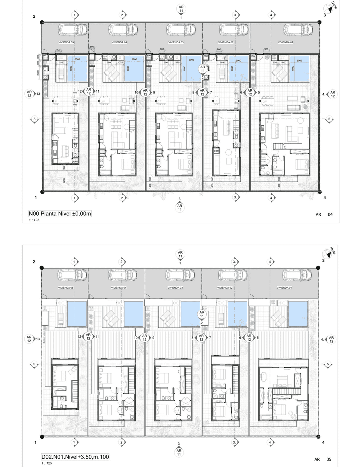
Discover the perfect harmony between nature and contemporary design in our exclusive development of single-family homes in Playa Venao. This project, developed in 2024, consists of five unique residences, ranging in size from 70 m² to 160 m², each designed to blend seamlessly with the coastal environment.
Project
Inspired by the serenity and beauty of Playa Venao, our homes feature exterior designs that blend modern lines with architectural details evoking a sophisticated yet relaxed style. Natural construction materials like wood and stone are prominently used, creating a timeless aesthetic that harmonizes seamlessly with the beach ecosystem.Inside, each residence serves as a haven of tranquility and comfort. Exposed beam ceilings and solid wood floors bring rustic charm, while large windows allow natural light to flood the spaces, resulting in a bright and welcoming atmosphere. The intelligent spatial layout effortlessly connects living, dining, and kitchen areas, fostering an ideal setting for entertainment and family living.
At the heart of each home is a private garden, where an impressive pool acts as the focal point. This space not only offers a refreshing retreat to enjoy the tropical climate but also seamlessly unites interior and exterior spaces, delivering an unparalleled outdoor living experience.The bathrooms, designed as sanctuaries of serenity, are bathed in natural light through skylights incorporated into the roof. Every corner is illuminated by sunlight, providing a continuous sense of freshness and brightness.
In this Playa Venao development, the combination of high-quality materials, thoughtful spatial flow, and attention to detail creates homes that are both tranquil retreats and perfect places to embrace the beauty of seaside living.
Technical details
#VIRTUAL DESIGN
#BIM
#AUTOCAD
#MAGNELIS
#CONCRETE
#THERMOPANEL
#FIBERCEMENT PANEL
#TREATED WOOD
#POLISHED CONCRETE
#PORCELAIN TILES
#STONE SINKS
#STEEL FRAMING
#EIFS
#SOLAR PANELS
#ECO WATER TREATMENT PLANT





