Estilo clásico con un toque rústico
Bienvenido al diseño innovador de nuestra residencia en Boquete, donde la fusión entre lo rústico y lo moderno crea un ambiente de montaña excepcionalmente elegante y acogedor. Inspirados por la belleza natural de este entorno único, nuestro equipo de arquitectos ha creado una vivienda que captura la esencia de la vida en las montañas, mientras incorpora elementos de diseño limpio y contemporáneo.
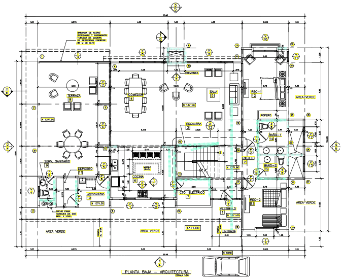
El proyecto
El corazón de esta residencia es una espaciosa zona de living y comedor, inundada de luz natural a través de grandes ventanales que enmarcan las impresionantes vistas de los alrededores. Estos espacios abiertos no solo ofrecen un ambiente luminoso y expansivo, sino que también conectan sin esfuerzo el interior con el exterior, permitiendo a los residentes disfrutar de la belleza de la naturaleza en todo momento.
Los dormitorios han sido cuidadosamente diseñados para combinar elegancia y funcionalidad, con detalles en madera local que aportan calidez y carácter a cada espacio. Los baños, bañados en luz natural, ofrecen un refugio sereno donde los residentes pueden relajarse mientras se sienten conectados con el entorno natural que los rodea.
La integración con la naturaleza es un elemento fundamental de este proyecto, con cada detalle del diseño orientado a maximizar la conexión con el entorno circundante. Los materiales y sistemas constructivos de la envolvente de la vivienda han sido seleccionados cuidadosamente para garantizar un rendimiento óptimo en condiciones de lluvia y humedad abundantes, proporcionando a los residentes la tranquilidad de saber que su hogar está construido para resistir los rigores del clima montañoso de Boquete. En esta residencia, la armonía entre lo natural y lo construido crea un refugio verdaderamente excepcional en el corazón de las montañas.
Detalles Técnicos
#VIRTUAL DESIGN
#BIM
#AUTOCAD
#MAGNELIS
#CONCRETO
#PANEL SANDWICH
#FIBROCEMENTO
#MADERA TRATADA
#PIEDRA NATURAL
#CONCRETO PULIDO
#PORCELANATO
#STEEL FRAMING
#EIFS
#PANELES SOLARES
#PLANTAS TRAT ECO








