Classic style with a rustic touch
Welcome to the innovative design of our Boquete residence, where the fusion of rustic and modern creates an exceptionally elegant and welcoming mountain atmosphere. Inspired by the natural beauty of this unique environment, our team of architects has created a home that captures the essence of mountain living, while incorporating clean, contemporary design elements.
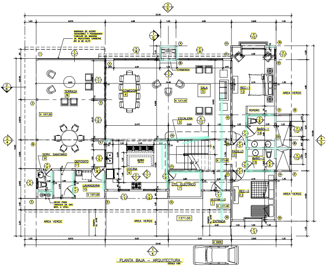
Project
The heart of this residence is a spacious living and dining area, flooded with natural light through large windows that frame the stunning views of the surrounding area. Not only do these open spaces offer a bright and expansive ambiance, but they also effortlessly connect the interior with the exterior, allowing residents to enjoy the beauty of nature at all times.
The bedrooms have been carefully designed to combine elegance and functionality, with local wood details that bring warmth and character to every space. The bathrooms, bathed in natural light, offer a serene retreat where residents can relax while feeling connected to the natural environment around them.
Integration with nature is a fundamental element of this project, with every detail of the design geared towards maximizing connection with the surrounding environment. The materials and construction systems of the housing envelope have been carefully selected to ensure optimal performance in abundant rain and humidity conditions, providing residents with the peace of mind of knowing that their home is built to withstand the rigors of Boquete's mountainous climate. In this residence, the harmony between the natural and the built creates a truly exceptional retreat in the heart of the mountains.
Technical details
#VIRTUAL DESIGN
#BIM
#AUTOCAD
#MAGNELIS
#CONCRETE
#SANDWICH PANEL
#FIBERCEMENT
#TREATED WOOD
#NATURAL STONE
#POLISHED CONCRETE
#PORCELANiC TILE
#STEEL FRAMING
#EIFS
#SOLARE PANELS
#ECO WATER TREATMENT









