Diseño bioclimático con un eje natural protagonista
Este proyecto gira en torno a su área central, creando un núcleo verde que conecta espacios interiores y exteriores. A través de un diseño bioclimático y sistemas avanzados, la vivienda optimiza confort, eficiencia y armonía con su entorno
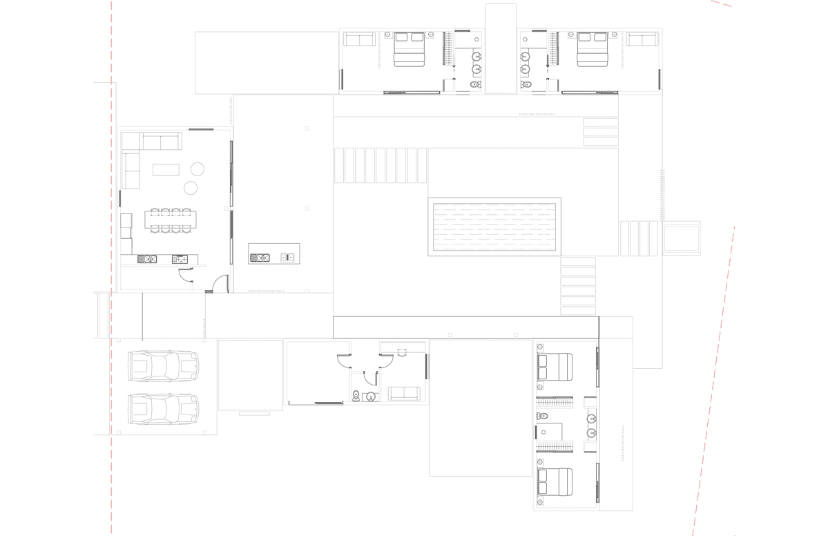
El proyecto
Este proyecto es una muestra del ingenio y la creatividad en el diseño arquitectónico. Al no contar con vistas naturales atractivas, se optó por transformar el núcleo de la vivienda en su mayor fortaleza: un área central cuidadosamente diseñada para convertirse en el eje articulador del proyecto. Este espacio, rodeado de vegetación y luz natural, no solo organiza la distribución de los ambientes, sino que también genera una sensación de amplitud y conexión con la naturaleza, a pesar de la limitación del entorno exterior.
La vivienda se concibió bajo el principio de integración total con el ambiente, permitiendo que cada estancia se fusione de manera orgánica con los espacios exteriores. Grandes ventanales, corredores abiertos y materiales naturales facilitan esta transición fluida, generando una relación armoniosa entre el interior y el exterior. La zona central, con su jardín y espejo de agua, no solo embellece el espacio, sino que también optimiza la ventilación y el confort térmico, reforzando el enfoque ecoeficiente del proyecto.
Más allá de su funcionalidad y estética, esta residencia redefine el concepto de habitabilidad al transformar un reto arquitectónico en una oportunidad única de diseño. Gracias a la combinación de sistemas constructivos avanzados y un enfoque bioclimático, el proyecto logra un balance perfecto entre innovación y confort, ofreciendo un espacio donde la arquitectura y la naturaleza se complementan para mejorar la calidad de vida de sus habitantes.
Detalles Técnicos
#VIRTUAL DESIGN
#BIM
#AUTOCAD
#MAGNELIS
#CONCRETO
#STANDING SEAM
#FIBROCEMENTO
#MADERA TRATADA
#CONCRETO PULIDO
#PORCELANATO
#LAVABOS RÚSTICOS
#STEEL FRAMING
#DAFS
#PANELES SOLARES
#PLANTAS TRAT ECO






