Confort y elegancia en la playa
En este proyecto creamos un oasis de serenidad y sofisticación para un proyecto de edificio de apartamentos, donde se combinan materiales muy resistentes al ambiente marino con un diseño sencillo pero que facilita una experiencia única para los usuarios del edificio.
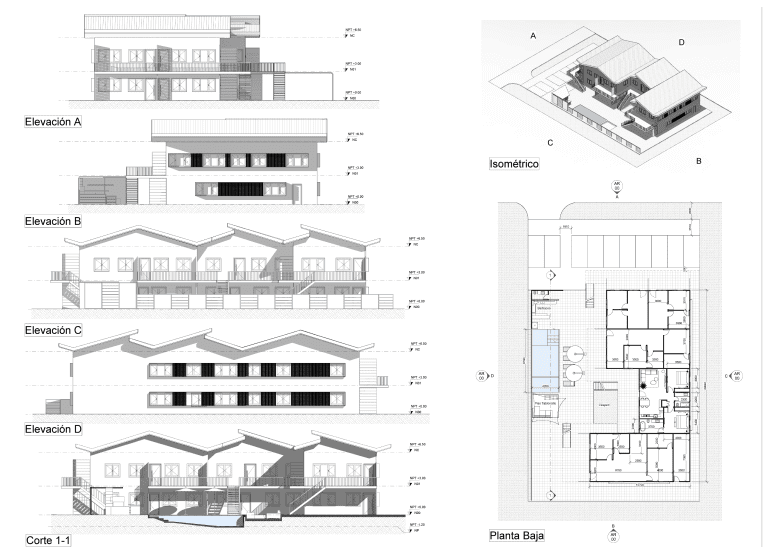
El proyecto
Concebido para maximizar la edificabilidad sin comprometer la calidad ni el confort, este complejo fusiona la estética moderna con la funcionalidad. Los ingenieros y arquitectos enfrentaron el desafío de optimizar cada centímetro cuadrado, resultando en una distribución eficiente que ofrece amplios espacios habitables y áreas comunes para el disfrute de sus residentes.
Ubicado en Playa Venao, la orientación del conjunto fue cuidadosamente planificada para aprovechar al máximo las horas de sol y la brisa marina, mientras se protege de los elementos adversos. La elección de materiales sólidos y resistentes a los ambientes de playa garantiza la durabilidad y la integridad estructural del edificio, proporcionando a los residentes una sensación de seguridad y tranquilidad.
Pero lo más impresionante de este proyecto reside en losacabados que te transportan a un ambiente con reminiscencias balinesas. Cadadetalle, desde los revestimientos de hasta los elementos decorativos inspiradosen la arquitectura tropical costera, crea una atmósfera de elegancia y calidezque invita al descanso y la relajación.
Diseñamos para nuestro cliente un paraíso costero, donde el diseño arquitectónico se convierte en una experiencia sensorial. Este no es solo un edificio de apartamentos; es un refugio de lujo donde tus sueños de vivir junto al mar se hacen realidad.
Detalles Técnicos
#VIRTUAL DESIGN
#BIM
#AUTOCAD
#MAGNELIS
#CONCRETO
#PANEL SANDWICH
#FIBROCEMENTO
#MADERA TRATADA
#CONCRETO PULIDO
#STEEL FRAMING
#EIFS
#PANELES SOLARES
#PLANTAS TRAT ECO









