Arquitectura de nivel en las áreas más remotas
Este proyecto demuestra cómo nuestra tecnología de construcción en seco con Steel Framing permite crear espacios sostenibles y de diseño moderno en entornos remotos. Destaca por su integración con la naturaleza, eficiencia energética y diseño funcional, logrando un equilibrio entre innovación y respeto por el entorno.
El proyecto
Este proyecto representa un ejemplo sobresaliente de innovación y diseño en la construcción moderna. Ubicado en un entorno de difícil acceso, se logró materializar gracias a nuestra avanzada tecnología de construcción en seco con Steel Framing. Este método no solo permitió superar los retos logísticos del terreno, sino que también garantizó una ejecución eficiente y precisa, minimizando el impacto ambiental. La vivienda se integra de manera armoniosa con el paisaje circundante, respetando y realzando la belleza natural del entorno.
El diseño arquitectónico combina elegancia y funcionalidad, destacando por sus líneas modernas y espacios abiertos. Grandes ventanales estratégicamente ubicados no solo maximizan la entrada de luz natural, sino que también ofrecen vistas panorámicas del entorno, creando una conexión constante entre el interior y el exterior. En el corazón del proyecto, se encuentra una amplia área social que fluye hacia una terraza y una piscina, diseñadas para disfrutar plenamente del entorno natural. Cada detalle ha sido cuidadosamente pensado para ofrecer comodidad y estilo, sin comprometer la sostenibilidad.
La ecoeficiencia es un pilar fundamental de este proyecto.
La estructura de Steel Framing no solo reduce significativamente los residuos de construcción, sino que también optimiza el uso de materiales sostenibles. Además, la vivienda incorpora sistemas de ahorro energético y ventilación natural, promoviendo un estilo de vida responsable con el medio ambiente. Este proyecto es un testimonio de cómo la tecnología y el diseño pueden converger para crear espacios habitables que sean tanto estéticamente atractivos como respetuosos con la naturaleza.
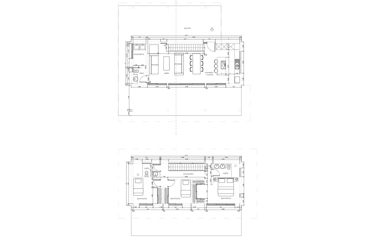
Detalles Técnicos
#VIRTUAL DESIGN
#BIM
#AUTOCAD
#MAGNELIS
#CONCRETO
#STANDING SEAM
#FIBROCEMENTO
#MADERA TRATADA
#CONCRETO PULIDO
#PORCELANATO
#LAVABOS RÚSTICOS
#STEEL FRAMING
#EIFS
#PANELES SOLARES
#PLANTAS TRAT ECO







